Rumah Modern Minimalis 200M2 Tropis, lokasi berada di kota Surabaya bagian timur tepatnya kecamatan Rungkut, desain rumah satu lantai berikut berdiri diatas lahan berukuran 10 X 20 M dan hampir 100% lahan yang ada difungsikan sebagai bangunan, teralokasi sedikit sebagai penghawaan/ ruang terbuka tanpa atap yaitu pada bagian taman tengah dan sisi terbuka jemuran belakang juga dibagian depan yaitu kolam koi plus gazebonya.
Desain yang kita beri judul posting Rumah Modern Minimalis 200M2 Tropis berikut, memiliki fasade khas bangunan tropis dengan desain atap perisai serta dominan pemakaian material alami batu alam sebagai finishing maingate ataupun pagar depan, kesan tropis dan alami semakin didapat dari model pintu pagar swing + sliding yang dilapis kayu bertekstur, secara keseluruhan desain fasade sudah sangat mewakili kesan tropis dan alami diperkuat nuansa alam dengan hadirnya gazebo dan kolam koi bawahnya.
Layout interior ruang “rumah modern minimalis 200M2 Tropis” dimulai pada pembagian akses utama dari ruang tamu dan area dapur sebagai pintu masuk dari carport serta mengikuti penempatan ruang utama & pendukung lainnya, khusus untuk ruang tamu didesain tanpa penyekat dinding masif guna mendapatkan kesan lebih terbuka dan luas, sebagai penyekat diberikan elemen interior devider yang masih transparan untuk terlihat dari sisi r keluarga dan ruang tamu, semua ruangan menghadap view utama ruang keluarga/ ruang makan yang menyatu, lebih jelas bisa dilihat ilustrasi Rumah Modern Minimalis 200M2 Tropis seperti berikut.
rumah modern minimalis_fasade 1
rumah modern minimalis_kolam & gazebo
rumah modern minimalis_fasade 2
**googlemaps/peta sebagai ilustrasi lokasi proyek desain arsitek dengan skala kota atau lebih kecil, nama jalan dan alamat jelas dirahasiakan atas dasar privasi.
Nama Proyek: Rumah Modern Minimalis 200M2 Tropis .
Jenis Desain: Desain Rumah.
Konsultan: SIGIARCHITECT.
Pemilik: Privacy
Desain : Sigit
Lokasi: SURABAYA-JAWA TIMUR.
Status Proyek: Pra – Desain.
Tahun: 2014.
Modeling: Autocad 2010.
Rendering: 3ds-Maxs 2012, Vray lighting.
Posting Lama : Fasad Rumah Tropis Minimalis.
Posting Baru : Desain Fasad Rumah Tropis Minimalis.
SIGIARCHITECT : Desain Rumah, Kantor & Interior Minimalis, Jasa arsitek Surabaya




desain rumah ini bagus
boleh minta
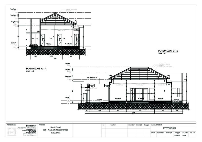
1. rumah modern minimalis_potongan
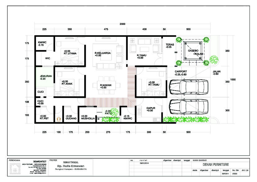
2. rumah modern minimalis_denah
3. desain rumah modern_atap
Maaf mas Agus, kita tidak sharing gambar yang bersifat detail pelaksanaan.
kira2 mau renovasi seperti ini, perkiraan biaya nya berapa ya? rumah saya ukuran 10×18, rumah model joglo 1 tingkat. Thanks.
Boleh tau untuk rumah model ini menghabiskan biaya berapa?
kira2 habis brp ya dg rumah model spt ini utk saat ini. rencana mau renov kuatir dana kurang
Mohon info biaya desain arsitektur lengkap untuk rumah 1 lantai ukuran 6 kali 15 berapa?? Dan berapa perkiraan biaya renovasinya?? Terima kasih..
untuk biaya desain penjelasan bisa dipelajari di link ‘LAYANAN’, http://sigiarchitect.com/jasa-arsitek-desain-rumah-villa/, SEDANGKAN biaya pelaksanaan pembangunan kualitas material sedang, kurang lebih saat ini Rp 4 jt, tanpa jasa kontraktor.
Terimakasih, Sigit.
pak sigit, kalau berkenan boleh minta file potongan rumah ini aja, buat referensi pembelajaran pak. kalau tdk keberatan bisa email ke rianade48@gmail.com , terima kasih sebelumnya pak sigit